general
Entrance door on 8′ end
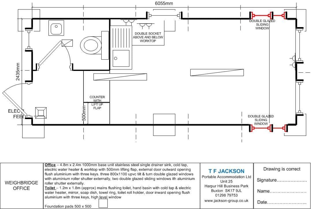
Mains flushing toilet with hand basin & high level window
Counter with lifting flap for signing in
Kitchen sink with 7ltr water heater & worktop
Three double glazed tilt & turn UPVC windows with aluminium roller shutters externally
Two double glazed sliding windows for with aluminium roller shutters externally weighbridge tickets etc.
This building offers good visibility for two weighbridge operatives manning two weighbridges.
- ISO Roof panel
- Composite steel wall panels
- Insulation – Non combustible mineral wool ·Walls 60 mm, Ceiling 60 mm, Floor 100 mm
- Water resistant cement resin floor (no timber)
- Single piece PVC flooring
- Flush ceiling mounted consumer unit
- Two ceiling mounted fluorescent lights
- Flush mounted power sockets.
- Assembled to your floor plan (door and window positions are interchangeable)
- Full one year manufacturers warranty
delivery
Buildings are assembled to order, layout can be altered to suit your site.
We can install additional windows if required, please contact us on 01298 79753 to discuss your requirement.
Transport to site can be arranged.












