Modular Building Installation at Little Treasures Nursery
In early 2025, Little Treasures Nursery, a well-established childcare provider in Worcester, expanded their facilities with a new modular building installation delivered by TF Jackson. The project provided a 50-square-metre purpose-built space tailored for nursery care and early learning. The new addition included a classroom, a children’s welfare area with toilets, secure storage, and office space – all meeting the highest standards of child safety and comfort and practicality.
About Little Treasures
Little Treasures Nursery has earned a reputation for excellence in early years education. Based at Broomhall Grange, a semi-rural site with a charming period building, the nursery has long served families in Worcester with a nurturing, stimulating, and safe environment.
With a growing reputation and an ever-expanding waitlist, the team knew it was time to evolve, but any expansion had to blend seamlessly with its surroundings while delivering all the practical features a modern early-years environment demands.
So the question was how? After evaluating their options, they chose a modular building solution, a decision that offered speed, cost efficiency, and flexibility.
VIEW THE DESIGN SPEC.
Why Modular?
Modular buildings are increasingly recognised as ideal solutions for early years and educational settings. They allow for rapid deployment without the extended disruption of traditional builds and are highly customisable to meet the strict regulatory and safety standards required in childcare environments. For Little Treasures, modular design provided the ideal balance between function, speed, and the ability to match the existing environment aesthetically.

Project Scope and Delivery
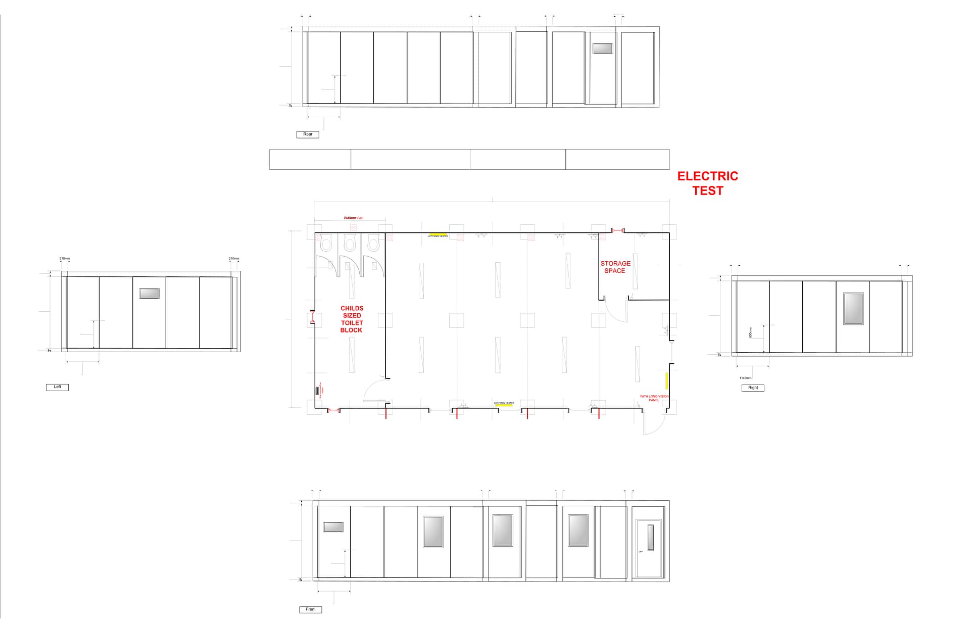
From the ground up, everything was tailored to little ones’ needs: low-level fittings, child-safe heating and every edge, outlet, and detail made as safe as possible. The exterior, clad in natural timber, ensured the new space sat beautifully beside the existing architecture and the playground.
The internal space included:
- A bright, well-ventilated classroom area
- Child-friendly toilet facilities with easy-access features
- Secure storage for educational resources and cleaning equipment
- Office space for administration
- A fully integrated fire alarm system
- Child-safe fittings, carpeted flooring, and boxed-in electrical systems

End-to-End Service by TF Jackson
From the moment Little Treasures picked up the phone to TF Jackson, the process was smooth and personal. A dedicated project manager was assigned, becoming the nursery’s single point of contact from the first site visit to final handover. This approach proved invaluable, especially when mid-project changes to the floor and electrical layout were needed. Thanks to clear and constant communication, TF Jackson adapted quickly and professionally, without skipping a beat.
The groundworks, including excavation, foundation laying, utility connection, and septic tank linkage, began during term time, carefully fenced off and managed under strict safety protocols. Everything was timed to precision so that final delivery and installation could take place over the half-term break, avoiding disruption for staff and children alike. Positioning the modular unit presented its own challenges, as it had to sit snugly next to existing buildings. Yet the TF Jackson team handled the logistical challenge with minimal impact on the nursery’s day-to-day routines.

Client Satisfaction
Before settling on TF Jackson, the nursery team did their homework, comparing quotes, checking credentials, and weighing up options. TF Jackson stood out not only for offering a highly competitive price but also for their reputation for quality, reliability, and customer care.
The nursery was especially pleased with the professional handling of the project and the finished result – an inviting, safe, and modern learning space that supports their continued growth.
The Little Treasures Nursery project is a prime example of how modular building solutions can meet the complex needs of educational settings. With a child-centred design, rigorous safety standards, and efficient project delivery, TF Jackson has once again demonstrated their capability to deliver smart, sensitive construction in demanding environments.

CHOOSE TF JACKSON FOR YOUR NEXT PROJECT
This project showcases what TF Jackson does best: working with heritage sites and public sector initiatives, managing complex projects with multiple stakeholders, and delivering high-quality modular buildings tailored to their settings.
If you’re looking for a partner who listens, delivers, and makes the process straightforward, even when the project isn’t, TF Jackson is the team to talk to.